6 ½ Zimmer-Haus in Landschlacht mieten

Seeweg 17, 8597 Landschlacht - CHF 5’500 exkl. NK pro Monat

Facebook Twitter Whatsapp Pinterest E-Mail

Inserent kontaktieren

Miete

Nettomiete (exkl. NK): CHF 5’500 pro Monat

Details

Anzahl Zimmer: 6 ½
Wohnfläche: 200 m²
Grundstücksfläche: 350 m²
Nutzfläche: 200 m²
Baujahr: 1784
Renovationsjahr: 2023
Ausstattung: Aussicht, Parkplatz, Cheminée, Parkettboden, Steinboden, Waschmaschine, Trockner, Geschirrspüler
Bezugstermin: Nach Vereinbarung
Online Betreibungsauszug: Jetzt bestellen Lieferung innert 1-2 Tagen direkt per Email.
Provisorische Bescheinigung: Gratis-Bescheinigung holen Boosten Sie Ihr Mietdossier mit SwissCaution.
Ihre Hausratversicherung: Prämie berechnen Neues Zuhause? Die Mobiliar Haushaltsversicherung schützt umfassend.

Umgebung

Beschreibung

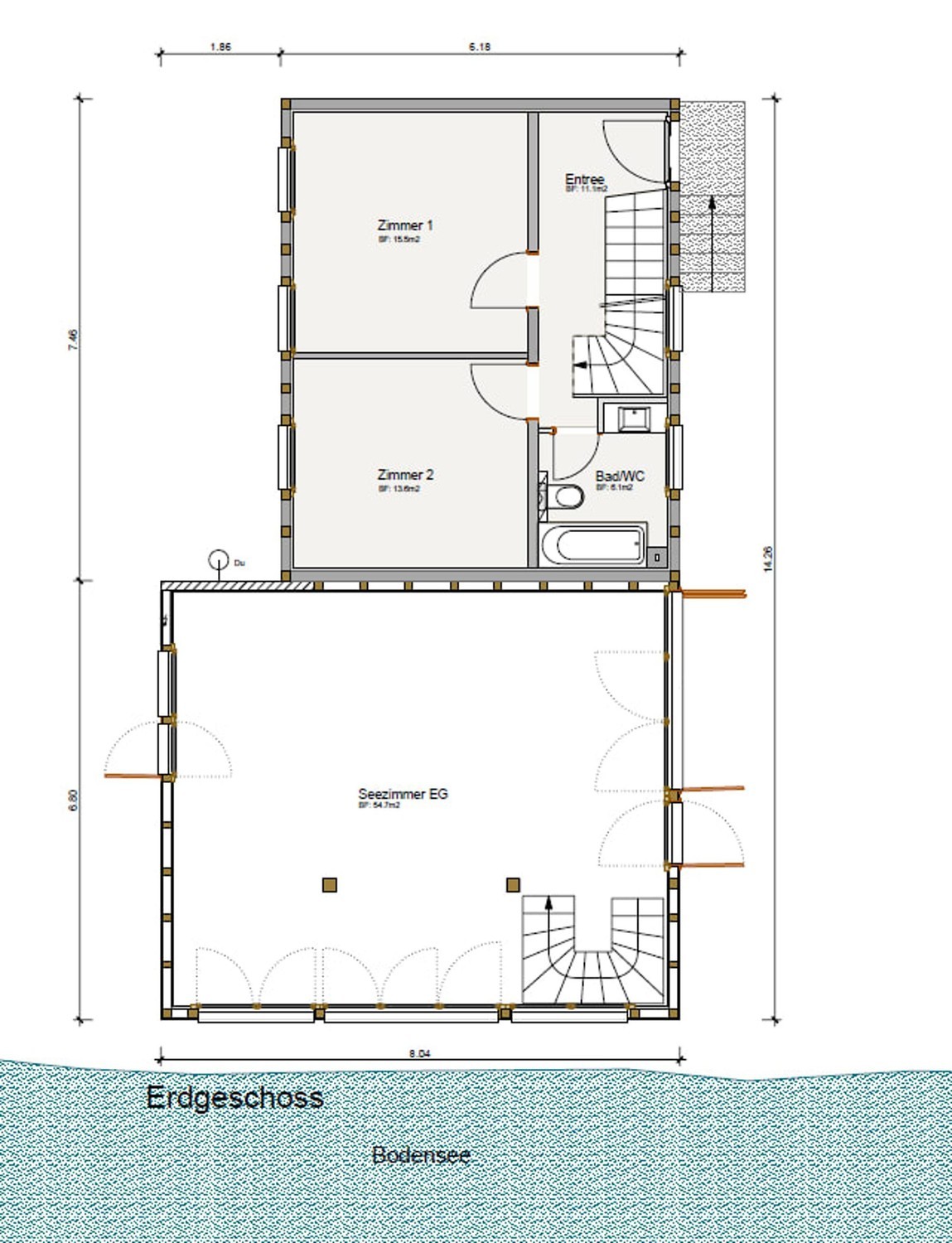
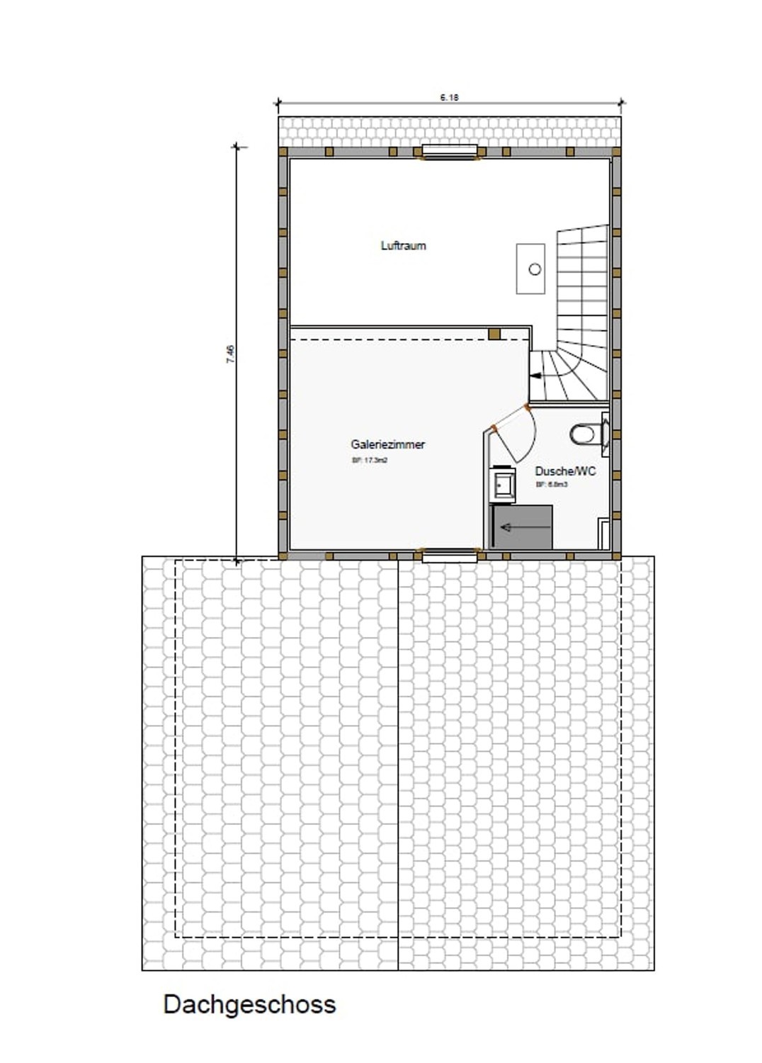
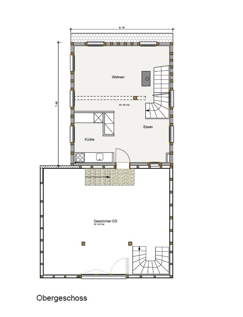
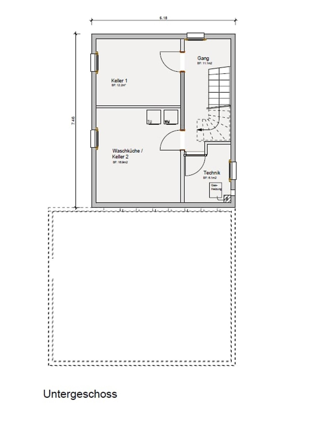
Idyllisches Riegelhaus direkt am See

Das historische Riegelhaus befindet sich an idyllischer Lage direkt am Bodensee mit eigenem Seezugang. Sowohl vom Haus als auch vom Garten geniessen Sie einen herrlichen Panoramablick. Die Liegenschaft verfügt über:

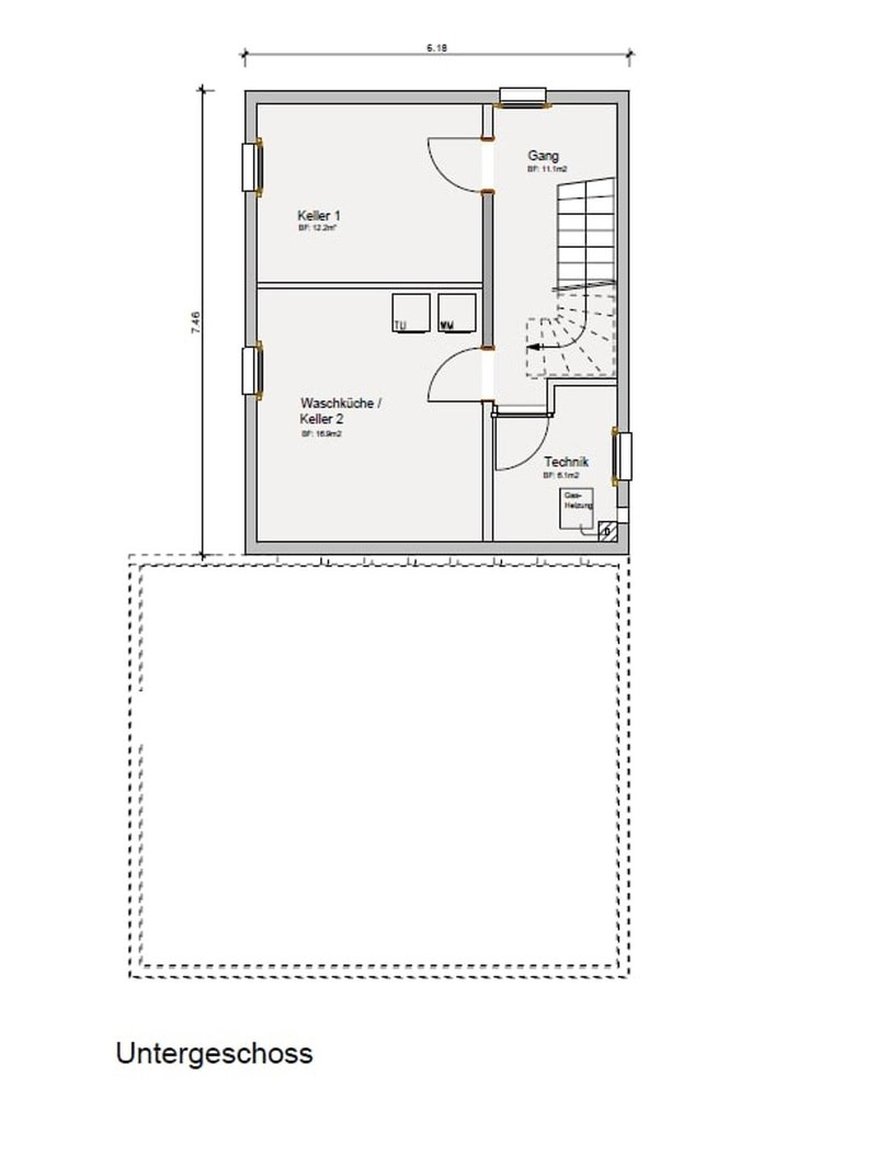
Wohnhaus:

  • Keller: 3 Kellerräume, Waschmaschine/Tumbler
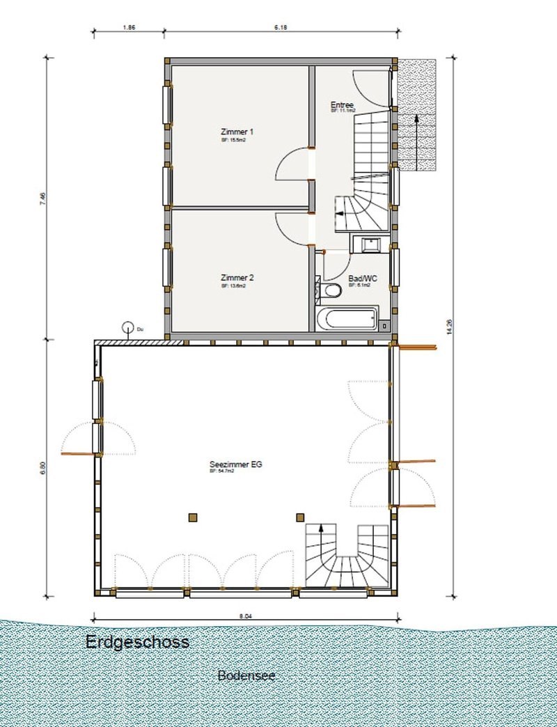
  • EG: Haupteingang, 2 Schlafzimmer, Bad/WC
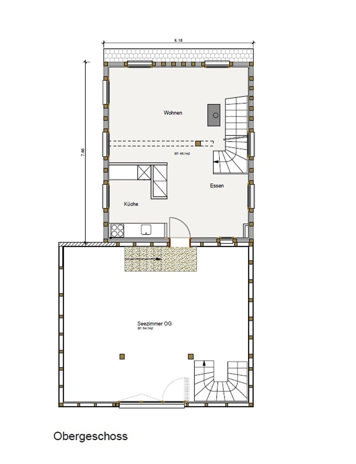
  • OG: Wohn-/Esszimmer mit Cheminée, Küche, Zugang zu den beiden Seezimmern
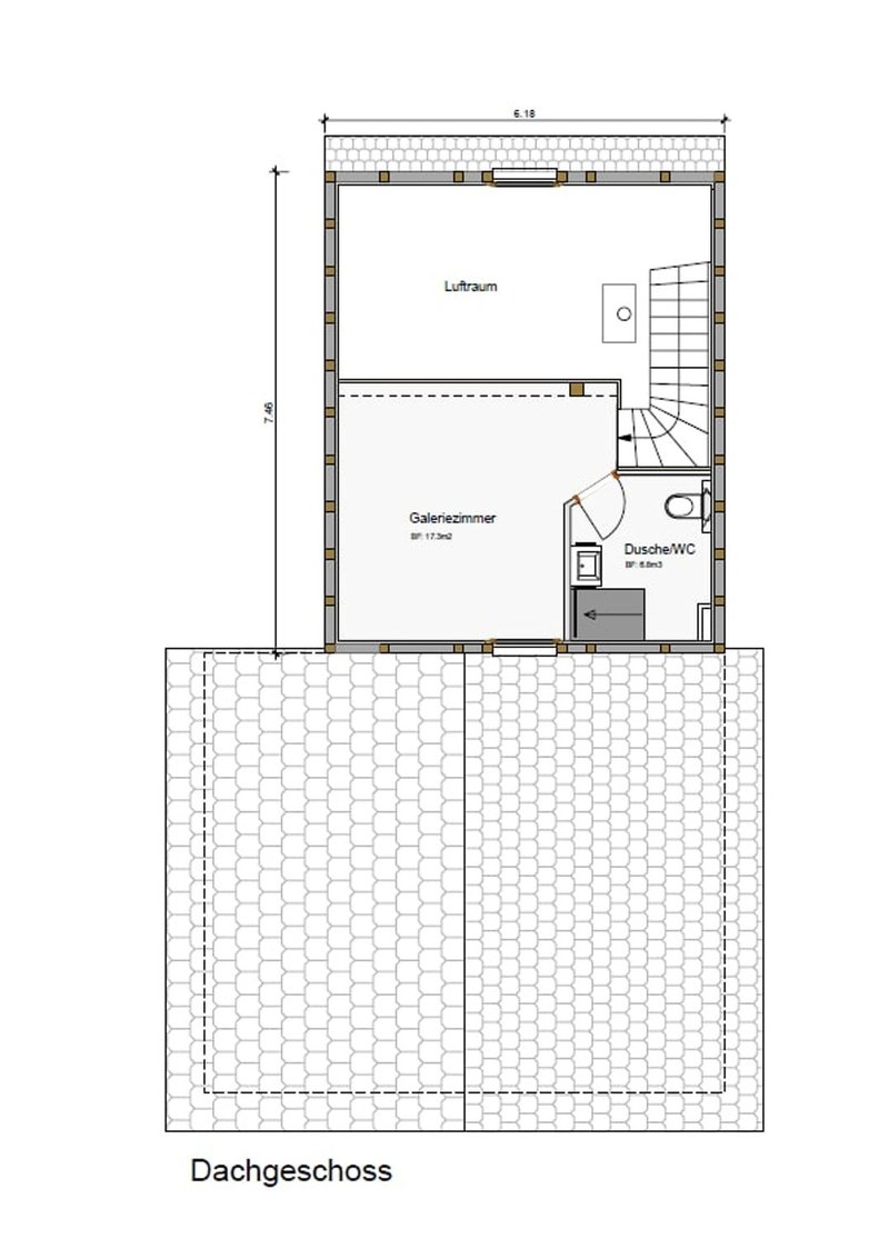
  • DG: Galerie, Dusche/WC

Scheune:

  • Vollständig ausgebaut
  • Direkt zugänglich vom Wohnhaus
  • EG: Seezimmer (50m2) mit grosser Fensterfront, separater Zugang zum Garten
  • OG: Seezimmer (50m2) mit grosser Fensterfront, Zugang zum Wohnhaus

Das Wohnhaus ist überall mit schönen Deckenmalereien verziert. An der Aussenwand befindet sich eine Sonnenuhr.

Drei Gehminuten zum Bahnhof Landschlacht. Zum Haus gehören zwei Autoabstellplätze im Freien.

Das Haus steht nicht zum Verkauf.

Inserent kontaktieren

Wohnung gefunden? Nur versichern, was Sie brauchen.

In einer einzigen Police der Mobiliar können Sie genau die Gefahren versichern, die Ihnen wichtig sind und Ihrer Lebens- und Wohnsituation entsprechen.

Suchabo für Objekte in Münsterlingen

Erhalten Sie eine Benachrichtigung, wenn ähnliche Wohnungen in Münsterlingen auf den Markt kommen.

Suchabo erstellen

Ähnliche Inserate um Münsterlingen


Mehr anzeigen...