723m² Bauland in Weesen kaufen

Steingüetlistrasse 1, 8872 Weesen - CHF 1’200’000

Facebook Twitter Whatsapp Pinterest E-Mail

Inserent kontaktieren

Verkaufspreis

Verkaufspreis: CHF 1’200’000 Total

Details

Grundstücksfläche: 723 m²
Bezugstermin: Nach Vereinbarung

Umgebung

Beschreibung

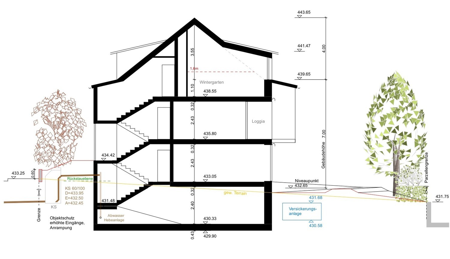
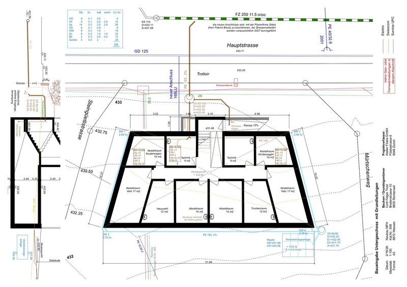
Bauland mit MFH-Projekt (8 Einheiten) in Weesen SG

Zum Verkauf steht ein voll erschlossenes Baugrundstück in Weesen an der Steingüetlistrasse 1 (Grundstück-Nr. 608) für ein Mehrfamilienhaus.

Das Projekt umfasst den Neubau eines Mehrfamilienhauses mit 8 Wohneinheiten und wurde architektonisch sowie wirtschaftlich optimiert.

Projektübersicht:

  • 8 × 2-Zimmerwohnungen
  • Wohnflächen von ca. 33 m² bis 49 m²
  • Wintergärten pro Einheit (ca. 11–13 m²)
  • Effiziente, kompakte Bauweise
  • Zentrale Erschliessung

Kennzahlen:

  • Anrechenbare Geschossfläche: ca. 347 m²
  • Gebäudevolumen: ca. 2’359 m³
  • Untergeschoss mit Technik-, Wasch- und Nebenräumen (ca. 166 m²)
  • 8 Aussenparkplätze vorgesehen

Das Projekt ist optimal auf den aktuellen Wohnungsmarkt ausgerichtet und ermöglicht eine rasche Realisierung ohne Planungsrisiko.

Ihre Vorteile:

  • Durchdachtes und marktorientiertes Projekt
  • Hohe Nachfrage nach kompaktem Wohnraum
  • Attraktives Investment für Entwickler und Investoren

Die ruhige Lage sowie die gute Erschliessung machen den Standort sowohl für zukünftige Mieter als auch für Investoren interessant.

Die vollständigen Projektunterlagen (Pläne, Schnitte, Ansichten, Berechnungen) sind vorhanden und werden bei Interesse gerne zur Verfügung gestellt.

Wir freuen uns auf Ihre Anfrage.

Inserent kontaktieren

Suchabo für Objekte in Weesen

Erhalten Sie eine Benachrichtigung, wenn ähnliche Wohnungen in Weesen auf den Markt kommen.

Suchabo erstellen

Inserent

Corti Felger Trust GmbH

Ähnliche Inserate um Weesen


Mehr anzeigen...