Rent a 3 ½ rooms apartment in Lenzerheide

Dieschen Sot 16, 7078 Lenzerheide - CHF 1’980 incl. utilities per month

Temporary Furnished
Facebook Twitter Whatsapp Pinterest Email

Contact advertiser

Rent

Gross rent (incl. utilities): CHF 1’980 per month

Details

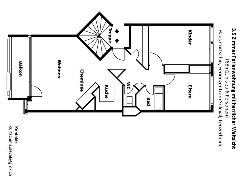
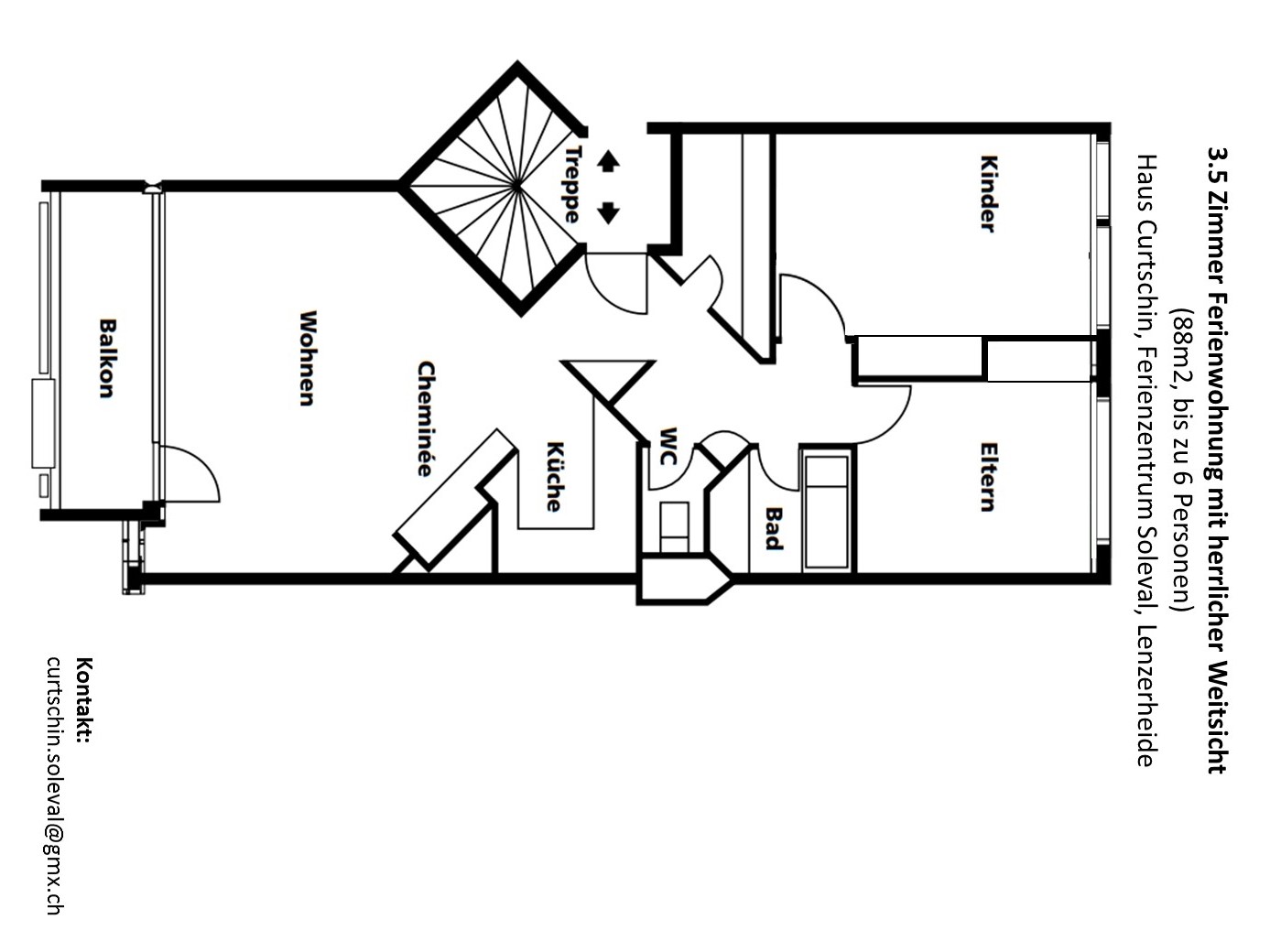
Number of rooms: 3 ½
Particulars: Temporary, Furnished
Floor: 3rd floor
Livingspace: 88 m²
Facilities: View, Parking space, Balcony/Garden, Lift, Washing machine, Parquet flooring, Tumbler, Dishwasher, Fire place, Cable
Available: By agreement

Surroundings

Description

3.5-Zi-Wohnung mit herrlicher Weitsicht, saisonal Mai-November 2026

Herrliche Weitsicht, sehr ruhig und sonnig

Wohnen/Essen mit grosser Fensterfront, hochwertig moebliert,
Elternzimmer mit Doppelbett, Kinderzimmer mit zwei Stockbetten,
Bettsofa, Kabel-TV, Balkon/Sitzplatz, Kellerraum, Ski-Bikekeller,
Nichtraucher-Wohnung, keine Haustiere

Einstellplatz in Tiefgarage, ausreichend Besucherparkplätze

Oberste Etage im Ferienzentrum Soleval/Haus Curtschin mit
umfassender Infrastruktur inkl. Frühstückskiosk, direkter Zugang
zu Sportzentrum Lai, Spielraum, Waschküche usw.

5-10 Fussminuten von Dorfzentrum, Heidsee und Rothorn-Talstation, Sportbushaltestelle direkt vor dem Ferienzentrum Soleval.
Dauermiete ab 15.04. bis 30.11.2026, ab Fr. 1’980.- je Mt. inkl. NK

Contact advertiser

Subscribe for listings in Vaz/Obervaz

Be instantly notified when similar listings in Vaz/Obervaz arrive.

Create a subscription

Similar objects around Vaz/Obervaz


Show more...